CAUE de l'Essonne CAUE 91 Le CAUE de l'Essonne est une association départementale, qui a pour vocation la promotion de la qualité architecturale, urbaine, paysagère et environnementale. CAUE 91, architecture, urbanisme, environnement, conseil, sensibilisation, formation, pédagogie

UNE CANTINE SCOLAIRE ÉVOLUTIVE, EN BOIS ET PAILLE, À IGNY

VISITE D'OPÉRATION

En décembre 2025, le CAUE 91 a visité la nouvelle cantine scolaire du secteur Joliot-Curie à Igny, conçue par le cabinet d’architectes Oyapock. Enfants et agents municipaux y bénéficient d’un cadre apaisant, avec des matériaux naturels, des volumes généreux, une belle lumière et une acoustique étonnamment calme à l’heure du déjeuner. Pensé pour évoluer et accueillir différents usages, cet équipement malin vient d’être distingué par le prix AMO 2025 dans la catégorie “typologie la plus créative”.

Cantine Oyapock - Vue Frontale depuis la cour
Cantine Oyapock - Vue Frontale depuis la cour © Salem

Un concours d’architecture pour une programmation atypique

La cantine scolaire se situe au sud d’Igny, dans le secteur Joliot-Curie, actuellement en cours de requalification (renouvellement de l’offre de logements, amélioration des équipements et espaces publics). Dans ce cadre, l’ancienne cantine, trop petite et vétuste, a été démolie pour laisser place à un nouvel équipement. Un AMO (assistant à maîtrise d’ouvrage) a participé à l’élaboration du programme aux côtés des services de la ville. Les besoins des usagers ont été recensés : des salles de restauration plus grandes et lumineuses, une très bonne acoustique (l’ancienne cantine était extrêmement bruyante), des espaces de travail qualitatifs et ergonomiques pour les 10 agents de restauration.

Puis le concours d’architecture a été organisé. Le programme, atypique, consistait à concevoir un bâtiment pour la nouvelle cantine tout en offrant une flexibilité pour d’autres usages (périscolaires, associatifs). Il était aussi demandé aux équipes d’anticiper la future construction d’un étage pour compléter plus tard le bâtiment avec un autre équipement communal (salle polyvalente/gymnase). Cela impliquait de surdimensionner les fondations et la structure afin de se laisser la possibilité d’une évolution future du bâtiment. Le surcoût est de l’ordre de 30 %.

Le bâtiment livré répond à ce défi avec un petit truc en plus. Les architectes de l’agence Oyapock ont fait le pari de proposer, sans attendre, un usage sur le toit de la cantine. Ils ont ainsi imaginé une cour haute, sportive, au dessus du réfectoire élémentaire et un espace pédagogique au dessus du réfectoire maternelle (bacs potagers et toiture végétalisée avec 35 cm de terre). 

 

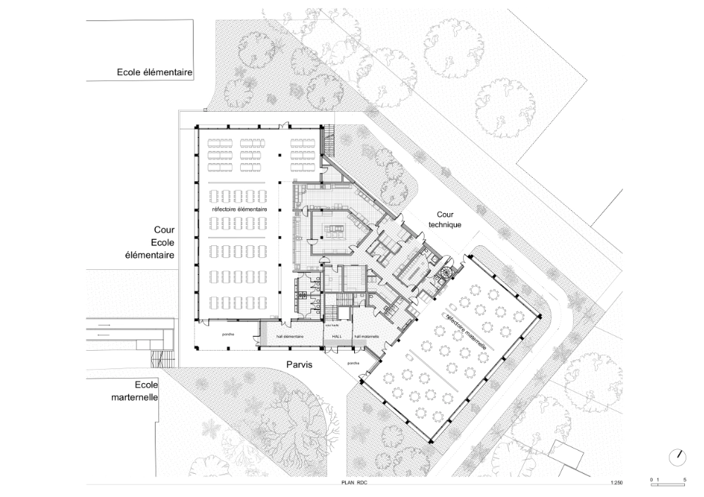
L’organisation des espaces

Le bâtiment a été agencé pour permettre une occupation simultanée ou indépendante, partielle ou totale, par les différents usagers : élémentaire, maternelle, cour haute et salle polyvalente dans le futur.

L’entrée se fait par un hall commun. On trouve de part et d’autre, un sas vers les réfectoires (élémentaire à gauche, maternelle à droite) où les enfants peuvent facilement patienter sans gêner ceux qui mangent. En face, on peut monter directement vers le toit. 
Nous sommes venus un jour de semaine et avons pu observer le déroulement des repas. En tout, la cantine accueille 600 enfants sur le temps du midi (maternelle et élémentaire Joliot-Curie, maternelle Charles Perrault, élémentaire Jules Ferry ). Elle est également utilisée le soir pour le goûter.

Les entrées  et sorties des enfants sont particulièrement fluides. Depuis le réfectoire élémentaire, les enfants de l’école Joliot-Curie peuvent d’ailleurs sortir directement dans leur cour de récréation attenante grâce à des châssis coulissants (sans attendre que tous les enfants du même service soient prêts à sortir). Les enfants de l’école Ferry peuvent quant à eux, monter jouer sur le toit en attendant le retour vers leur école. Chacun peut manger à son rythme, un vrai bénéfice pour les enfants.

En dehors des temps de cantine, le hall est modulable : deux parois coulissantes en bois permettent de fermer une partie des accès en fonction des besoins. Cette flexibilité permettra par exemple d’utiliser un des réfectoires comme salle associative le soir ou le week-end, et, dans le futur, d’utiliser le premier étage indépendamment du rez-de-chaussée. La mutualisation des espaces va se faire progressivement.

Lors de notre visite, les équipes nous expliquent qu’une première soirée test a déjà été organisée. Les retours sont positifs, même si la flexibilité va tout de même demander de mettre en place quelques règles d’usages afin d’éviter les conflits entre utilisateurs. C’est une problématique incontournable des mutualisations. A ce stade, le principal sujet relevé par les équipes concerne l’ouverture de l’office sur le réfectoire élémentaire. Afin de garantir une parfaite hygiène pour la cantine scolaire, il sera peut-être nécessaire de trouver une solution de fermeture de l’office lors des temps associatifs (les règles d’usage ne suffisent pas toujours). 

 

Les choix constructifs au service de la flexibilité

Les réfectoires sont de grandes salles rectangulaires, avec de belles hauteurs sous plafond, intégralement vitrées sur trois côtés. Ils ont été conçus pour rester facilement adaptables, avec un système structurel libérant l’espace et autorisant un re-cloisonnement au gré des besoins. Dans le même esprit, le passage des réseaux a été étudié de manière à ne pas gréver les possibilités de re-cloisonnement (réseaux apparents et arrivées par le sol).

Le système poteaux-poutres en treillis mixte bois-acier, associé à un plancher béton connecté, permet de franchir une portée de 15 m à pente nulle, tout en supportant une charge d’exploitation de 500 kg/m². L’encombrement structurel des poutres sous-tendues a été optimisé à 1,20 m de hauteur. Comme elles sont visibles, leur dessin a été particulièrement soigné par les architectes et le bureau d’étude structure. 

 

S’ouvrir sur l’extérieur

L’ouverture généreuse du bâtiment sur l’extérieur était un pari pour le confort d’été. Des études d’ensoleillement ont ainsi été réalisées par l’équipe de maîtrise d’œuvre pour bien anticiper ce point. Des stores ont été intégrés au complexe de façade partout où les études montraient leur nécessité. Toutefois, en juin dernier, lors de quelques journées particulièrement ensoleillées, une zone du réfectoire maternelle s’est avérée un peu trop exposée. L’espace étant grand, la problématique (ponctuelle dans l’année) a été facilement résolue en déplaçant les tables un peu plus loin de la fenêtre.

 

Une isolation en paille francilienne

Les parties pleines de façades, disposées entre les poteaux en bois de la structure, sont réalisées en mur à ossature bois (MOB) isolé en paille. Ces MOB - assurant à la fois le  remplissage et le contreventement de la façade - ont été préfabriqués en atelier par les Ateliers Méha à Valenton (94). L’isolant en paille, sous forme de bottes de 27 cm,  provient de Seine-et-Marne (77). Cette préfabrication en atelier a permis de réduire les nuisances de chantier, tout en raccourcissant les délais de construction.
Une “fenêtre de vérité” permet de rendre visible le remplissage en paille et d’en expliquer le principe aux enfants. À l’occasion de l’inauguration, ceux-ci ont pu y déposer une capsule temporelle contenant des souvenirs de leur époque, destinée à être découverte par les générations futures d’élèves lors de son ouverture, prévue dans au moins trente ans.

 

Le chantier et le choix des entreprises

Le déroulement du chantier a nécessité une vigilance particulière en raison de fortes contraintes de site. Implanté en limite immédiate de la cour de l’école élémentaire Joliot-Curie — restée en activité pendant toute la durée des travaux — l’équipement est également bordé par des habitations. L’accès au chantier, étroit, combiné à une emprise au sol importante du bâtiment, a complexifié l’organisation des interventions.

Dans ce contexte, le choix des entreprises revêtait une importance déterminante. Les architectes soulignent avoir accordé une attention particulière à l’analyse approfondie des nombreuses offres reçues lors de la phase de consultation, afin de s’assurer des compétences techniques et organisationnelles nécessaires à la réussite d’un chantier à la fois complexe et fortement contraint.

 

Un exemple inspirant

Concevoir un nouvel équipement public représente toujours un engagement financier majeur pour une commune, d’autant plus lorsqu’il s’agit de projeter des usages dont la nature évoluera inévitablement au fil des générations. Le projet de la cantine d’Igny assume pleinement cette incertitude en faisant de l’évolutivité un principe fondateur. Pensé dès l’origine comme un bâtiment capable d’accueillir des fonctions multiples, il permet aujourd’hui la mutualisation des usages — périscolaires, associatifs ou familiaux — limitant ainsi la multiplication d’équipements monofonctionnels. Mais il ouvre également la voie à de futures transformations, en autorisant une reprogrammation complète du bâtiment si les besoins de la commune venaient à changer. En misant sur l’intensité d’usage et la réversibilité, la collectivité inscrit cet investissement dans une démarche durable, à la fois économique, sociale et environnementale.

 

Les infos clefs :

Cantine scolaire “Les petits Chefs”, 3 rue Prosper Alfaric, 91430 Igny

Maître d’ouvrage : Ville d’Igny
Maître d’œuvre : OYAPOCK architectes mandataires, Make ingénierie (structure), SAS MAYA (fluides, démarche environnementale), ACP-ADS (cuisiniste), Acoustique et conseil, (acousticien), Edifira (économiste), Dasom (OPC)

Entreprises : OSB (Gros œuvre), MEHA (Construction bois), SMAC (étanchéité), Atelier Chevalier (Menuiseries Extérieures - métallerie), SFRE (VRD), BETTA (CVC- plomberie), SEGE (CFO-CFA), SNP+ (Menuiseries Intérieures – Faux Plafonds),  ADLVO (sols-peinture)

Programme : 

  • Programme initial : construction d'une cantine scolaire évolutive (avec mesures conservatoires permettant la construction d’un gymnase en toiture dans le futur).
  • Programme réalisé : construction d'unecantine scolaire évolutive + cour haute sportive + potager en toiture (avec mesures conservatoires permettant la construction d’un gymnase en toiture dans le futur). Le réfectoire élémentaire a une surface de 400 m² et celui de la maternelle de 300 m² accueillant 600 élèves par jour. 

Surface :  1250 m² utile, 600 m² de cour haute sportive
Coût : 4,1 M euros HT

Calendrier : livré en avril 2025

 

separateur

GALERIE D’IMAGES

separateur

SUR LE MÊME SUJET

separateur

MANIFESTATIONS À VENIR

separateur
separateur