CAUE de l'Essonne CAUE 91 Le CAUE de l'Essonne est une association départementale, qui a pour vocation la promotion de la qualité architecturale, urbaine, paysagère et environnementale. CAUE 91, architecture, urbanisme, environnement, conseil, sensibilisation, formation, pédagogie

LA TRANSFORMATION D’UN ANCIEN HANGAR MUNICIPAL EN TIERS-LIEU À CROSNE

VISITE D'OPÉRATION

Dans le cadre de sa veille architecturale sur le territoire de l’Essonne, le CAUE 91 a visité la Maison des Jeunes et des Associations de la ville de Crosne : un ancien hangar municipal réhabilité, en 2019, par l’agence d’architecture Lemoal & Lemoal, pour créer un lieu dédié aux 16-25 ans et aux associations. Un exemple intéressant de seconde vie donnée au patrimoine ordinaire d’une commune et une programmation protéiforme inspirante pour répondre aux besoins des jeunes (vie sociale, animation, information et écoute, accompagnement professionnel…).

Crosne – Maison des Jeunes et des Associations – Ville de Crosne / Lemoal & Lemoal architectes – Photo depuis l’extérieur, entrée sud
Crosne – Maison des Jeunes et des Associations – Ville de Crosne / Lemoal & Lemoal architectes – Photo depuis l’extérieur, entrée sud © Elodie Dupuis

La seconde vie d’un îlot en coeur de ville

La Maison des Jeunes et des Associations de la ville de Crosne (Espace Waldeck Rousseau) se trouve au sein d’un quartier pavillonnaire, à deux pas du centre-ville et de la mairie. On la découvre en passant le porche du “1901”, une ancienne école Ferry, en meulière, réhabilitée en 2014 en équipement municipal associatif par l’agence d’architecture Novak-Menier. Poursuivant la reconquête de l’ancien îlot scolaire, la ville a décidé en 2017 de missionner une équipe de maîtrise d’oeuvre pour réhabiliter l’ancien hangar de stockage se trouvant au fond de la cour. Il s’agissait d’y créer une structure jeunesse avec des locaux associatifs qui viendraient compléter la programmation de l’îlot et les structures existantes sur la commune. Les jeunes crosnois ont d’ailleurs été consultés via un questionnaire pour faire connaître leurs envies et leurs besoins pour la programmation de cet équipement de proximité. Une concertation a aussi été menée auprès des riverains afin de les associer à l’arrivée de ce nouveau lieu.

L’agence d’architecture Lemoal & Lemoal a été missionnée pour élaborer le projet de réhabilitation. Avec pragmatisme, les architectes ont imaginé la transformation de ce bâti d’activité en un lieu accueillant et polyvalent. Les interventions ont été ciblées en tirant intelligemment parti de ce qui existait déjà pour tenir des coûts modérés (inférieur à 1000 euros du m²). Le lieu métamorphosé ne cache pas sa première fonction mais lui donne au contraire une valeur nouvelle. C’est certainement ce qui fait l’âme de cet équipement atypique.

 

Composer avec le déjà-là

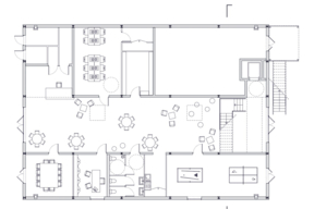
Au départ du projet, un hangar municipal à l’architecture peu qualifiée. Il s’agissait d’une grande halle en charpente métallique, avec des façades revêtues d’un bardage extérieur métallique gris (de type bac-acier), et non isolée. A l’intérieur, l’espace s’organisait autour d’une travée centrale (accessible aux véhicules), en double-hauteur, desservant différents locaux (cloisonnés par des parpaings bruts), ainsi que deux mezzanines (sans aménagements particuliers).
Le plan du nouvel équipement ne bouleverse pas cette organisation. Plutôt que d’engager des travaux coûteux à rebours de la conception du bâtiment d’origine, il en exploite les potentialités :

  • L’espace central, en double-hauteur, est affirmé comme une véritable nef, avec des façades intégralement vitrées à ses deux extrémités. Cette nef fonctionne comme un passage couvert ou une rue intérieure, desservant les différents espaces de la Maison des Jeunes : salle informatique, salle de jeux, salles de réunion et bureaux des équipes... La générosité et la polyvalence d’usage de cet espace le rend propice à l’appropriation. (lors de notre visite, nous y avons vu : un babyfoot, des canapés avec un coin bibliothèque, mais aussi des structures de fitness).
  • A l’étage, les anciennes mezzanines ont été cloisonnées pour créer des salles d’activités. Comme aucune nouvelle fenêtre n’a été percée sur l’extérieur, le cloisonnement vers l’espace central a été réalisé à l’aide de parois en polycarbonate pour assurer un apport lumineux suffisant. On accède à ces espaces depuis le nouvel escalier métallique installé dans la travée centrale, ou bien de façon indépendante, par un escalier extérieur menant directement au premier étage. Lors de la conception du projet, les architectes ont en effet travaillé à rendre indépendant le fonctionnement du rez-de-chaussée (dédié à la maison des jeunes) et l’étage (initialement réservé aux associations). Actuellement, les deux lieux tendent à se mélanger. Certains espaces du haut sont en effet régulièrement investis par les jeunes pour diverses activités (révision du bac, ateliers cuisine, etc.).

 

Un lieu sur mesure pour les 16-25 ans

Le lieu, ouvert peu avant la crise covid, est toujours en rodage, à la recherche de la meilleure formule, des horaires les plus adaptés. Mais c’est une des grandes forces de cet équipement : on voit que son usage peut facilement évoluer au gré des besoins et des différentes temporalités d’usage (journée, soir, week-end, vacances).
Il faut souligner que peu de structures de ce type existent en Essonne, en particulier pour cette tranche d’âge (16-25 ans). A Crosne, la municipalité a souhaité leur offrir un lieu sur mesure répondant à la diversité de leurs attentes et de leurs besoins. Cet équipement prend le relai du club ado déjà existant et dédié à une tranche d’âge plus jeune.
Ainsi, la Maison des Jeunes est-elle un lieu hybride, tout à la fois espace de rencontre, d’échanges, de loisirs, mais aussi lieu d’information (préventives ou professionnelles), d’insertion socio-professionnelle et d’aide au montage de projet.

 

La part belle au réemploi

L’architecture du lieu est à l’image de sa programmation inventive.

Le projet réemploie de nombreux matériaux du bâtiment d’origine qui participent à la singularité du lieu. La façade, la toiture, les ouvertures et la structure ont ainsi été conservées. Ce choix économique a permis aux architectes de se concentrer sur l’indispensable (l’isolation thermique et l’acoustique), d'introduire des éléments neufs qualitatifs (de belles portes en bois à l’intérieur par exemple) et d'effectuer un travail soigné de finitions.
Les éléments existants ont été anoblis en valorisant certaines caractéristiques existantes jusqu’alors invisibles : la finesse de la structure métallique est soulignée par sa mise en peinture noire, la texture des parpaings retrouve une forme d’élégance, par leur mise en peinture blanche. L’ensemble tout en contraste apporte une écriture contemporaine à peu de frais, qui met en valeur les éléments industriels existants.
A l’extérieur, le traitement en bac-acier des façades a été conservé, mais leur dessin et leur couleur donne un visage plus noble à l’équipement, et met en valeur les grandes fenêtres en forme de hublots qui ont été conservées.
Autre exemple à l’intérieur, les réseaux visibles sur les plafonds, dont le traitement soigné du parcours et des accroches en font des éléments architecturaux à part entière.

L’ensemble est très réussi.

On pourra bien sûr noter quelques points d’amélioration, à mettre probablement au compte du budget très serré. Ainsi, quelques adaptations du bâtiment ont-elles été réalisées à l’usage. Les grandes façades vitrées et les hublots ont été protégés du rayonnement solaire problématique en cas d’épisodes caniculaires, par l’ajout de films solaires. Ou encore, à l’inverse, le fonctionnement des radiants suspendus au plafond de la nef (très efficaces ! ) a-t-il été adapté en coupant un sur deux pour adapter la température intérieure en hiver aux nouveaux usages liés à la crise énergétique.

 

Les infos clefs :

Maison des Jeunes et des Associations, 28 rue Colbert, 91560 Crosne

Maître d’ouvrage : Ville de Crosne

Maître d’œuvre : Lemoal & Lemoal architecte mandataire, Loizon Ingénierie, DELTA fluides, Veritas (SPS et BC)

Entreprises : CRB (gros œuvre), ITB (façade, sol, peinture), UTB (plomberie, ventilation) ; GENETON (menuiseries intérieures), NRJ (électricité), Shindler (ascenseur)

Programme : Réhabilitation d’un hangar en Maison des Jeunes et des associations.

Surface : 616 m² SDP

Coût : 609 029 euros HT

Calendrier : livré 2019

 

separateur

GALERIE D’IMAGES

separateur

SUR LE MÊME SUJET

separateur

MANIFESTATIONS À VENIR

separateur
separateur